Мандарин
на парк
Про проєкт
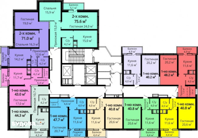
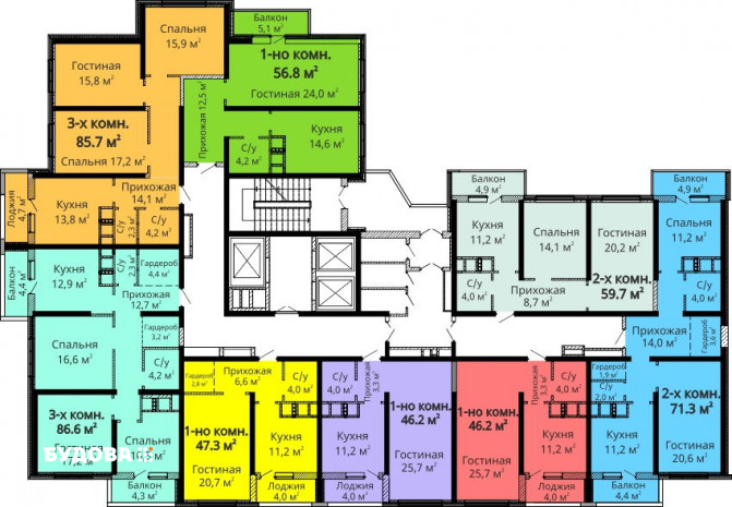
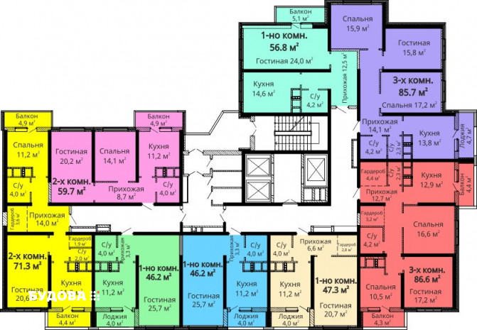
ЖК «Мандарин» знаходиться в Приморському районі Одеси. Власники квартир мають можливість жити в престижному районі міста, в кількох хвилинах від історичного центру, і насолоджуватись з вікон і балконів затишним зеленим парком.
Розташування
Переваги

Сформована інфраструктура району
Поруч — спорткомплекс, в кількох хвилинах пішки — три престижних ВНЗ: Аграрний університет, Академія харчових технологій і легендарний одеський Політех. У безпосередній близькості — Приморський ліцей, Юридичний коледж, кілька шкіл, в тому числі з поглибленим вивченням англійської мови. У десяти хвилинах від комплексу знаходяться Музей цікавої науки, бізнес-центр «Шевченківський», Одеська кіностудія.
По проспекту Шевченка або Гагаріна можна виїхати на Французький бульвар, в історичний центр Одеси або за пару хвилин потрапити на площу 10 квітня, в дендропарк Перемоги, в Аркадію. Десять хвилин пішки відокремлюють житловий комплекс від вузлової з точки зору транспортної логістики площі Середньофонтанської, через яку проходять майже всі основні маршрути громадського транспорту в цьому районі.
Поруч престижний Приморський ліцей
35-а школа, Юридичний коледж, три вузи
Вікна частини квартир в обох секціях
виходять на розташований навпроти парк Облради
Середньофонтанська площа, проспект Гагаріна
і Шевченка — можливість швидко дістатися до будь-якого району
Сучасні технологічні рішення
забезпечують комфорт в кожній квартирі — шумо-, гідро- і теплоізоляція на високому рівні
Види з вікон
Офіс продажу
Четыре сезона, Мандарин
ЖК на Еврейской
Sea View
Новый берег
Технології
Віброізолюючі властивості системи «підлога, що пливе» під вентиляторами і обладнанням дахової котельні забезпечують практично повну відсутність технологічних шумів. Комплекс протипожежних заходів відповідає найвищим сучасним стандартам в житловому будівництві. Склофібробетонні панелі тришарових фасадних систем заповнені утеплювачем. Це гарантує відмінну гідроізоляцію та додаткову можливість виключити втрати тепла.
Будинки житлового комплексу запроектовані з урахуванням сучасних вимог і сучасного передового досвіду у вирішенні архітектурно — просторового вигляду і надійності будівлі. Виходячи з поверховості житлового комплексу, була прийнята наступна схема — монолітний залізобетонний каркас з внутрішніми несучими стінами.
При проектуванні комплексу враховано вимоги ДБН В.1.1-12: 2006 «Будівництво в сейсмічніх районах», в результаті будівлі легко витримають нормативну сейсмічне навантаження, рівну 7 балам.
Оздоблення місць загального користування:
— Підлоги — декоративне покриття.
— Стіни — пофарбовані.
— Стелі — підвісні «Армстронг».
Шумозахисні заходи:
— Установка вентиляторів на виброизолирующих підставах.
— Установка устаткування автономного теплопостачання (котелень) на шумо- і віброізолюючиєю системі «плаваюча підлога».
Опалення та вентиляція
Джерелом теплопостачання служать індивідуальні дахові газові котельні провідних європейських виробників.
Теплоносієм для потреб опалення та теплопостачання прийнята вода з параметрами 80-60 °С.
Система опалення — закрита з насосною циркуляцією, двухтрубная, поквартирна, з установкою поверховій розподільної гребінки в загальному коридорі, з пластикових труб. В якості нагрівальних приладів в квартирах встановлюються сталеві панельні радіатори. Витяжна вентиляція житлових кімнат квартир передбачена через витяжні канали кухонь, санвузлів, ванних кімнат.
Водопостачання і каналізація
— Внутрішній водопровід монтується з шитого поліетилену.
— На введенні в кожну квартиру встановлюється водомір.
— Господарсько-побутова каналізація будівлі виконується з поліпропіленових труб.
— Для забезпечення безперебійного водопостачання житлового комплексу запроектовані водопровідні насосні станції.
Автоматизація
При проектуванні житлового комплексу були забезпечені такі системи автоматизації:
— Автоматика проти димної захисту, що передбачає управління роботою вентиляційних систем, що забезпечують примусове видалення диму і створення підпору повітря в ліфтові шахти, а також сигналізацію про пожежу.
— Автоматичне керування роботою вентиляційних систем, що забезпечують видалення диму і створення підпору повітря в тамбур-шлюзи паркінгу.
Електропостачання
Електричні мережі виконуються мідними проводами. Поквартирний облік електроенергії здійснюється електронними лічильниками електроенергії, які встановлюються в загальному холі.
Передбачається резервне електропостачання: два незалежних електричних введення від різних трансформаторів.
Протипожежні заходи
Відповідно до вимог норм з пожежної безпеки будівель комплекс забезпечується організаційно-технічними заходами, що виключають вплив на людей небезпечних факторів пожежі.
При будівництві будівель застосовуються сучасні будівельні та оздоблювальні матеріали, конструкції та інженерні системи, що забезпечують протипожежний захист будівель.
ЖК обладнаний засобами протипожежного захисту:
— Пристрій евакуаційного освітлення.
— Регламентація вогнестійкості конструкції.
— Система димовидалення ліфтових шахт.
Технічний стан квартир при передачі їх власникам
— Огороджувальні конструкції — стіни, вентиляційні та комунікаційні шахти, перекриття виконуються в повному обсязі.
— Оздоблення приміщень не виконується.
— Підлоги — стяжка з політермбетона — екологічно чистого продукту, що володіє високими теплоізоляційними і звукозахисними властивостями.
— Вікна та балконні двері — однокамерний склопакет з енергозберігаючим покриттям.
— Опалення — виконується в повному обсязі з установкою радіаторів.
— Водопостачання — введення стояків холодної та гарячої води з установкою лічильників.
— Електропостачання — введення електропроводки в квартиру від електронних лічильників обліку електроенергії, розташованих в холі.
— Вхідні двері — броньовані.
Стандарти будівництва
Документи
Будова
«Будова» — одна з найбільших будівельних компаній на півдні України, визнаний лідер житлового будівництва в Одесі. За 30 років роботи «Будова» здобула довіру тисяч одеських родин і побудувала > 60 об’єктів, з яких більше половини — житлові комплекси. Детальніше про компанію
- > 30 житлових комплексів
- > 1 000 000 кв. м готового житла
- > 30 000 сімей, домом для яких стали саме наші квартири
- Будуємо 30 житлових поверхів на місяць



























