Альтаир-3
рядом
О проекте
Альтаир-3 на ул. Жаботинского, 54а — третий проект в знаменитой серии новостроев в комфортных спальных районах Одессы. Комплекс расположен неподалёку от первого проекта в серии — «Альтаир. Звёздный городок». Визитная карточка всех проектов «Альтаир» — стильные и практичные фасады, яркая благоустроенная территория и развитая инфраструктура.
Комплекс «Альтаир-3» — отличная возможность покупки жилья комфорт-класса в уютном районе Одессы по умеренной цене. 
Коммерция
от 78 700 $Паркинг
от 21 500 $Кладовые
от 2 300 $Расположение
 
                                Во время данного этапа применяется туннельная опалубка производства компании «MESA», применение которой позволяет осуществлять возведение каркаса в сжатые сроки. Качество железобетона при этом остается на высоком уровне.
Во время данного этапа применяется туннельная опалубка производства компании «MESA», применение которой позволяет осуществлять возведение каркаса в сжатые сроки. Качество железобетона при этом остается на высоком уровне.
Во время данного этапа выполняются следующие работы:
- подводка и монтаж сетей водоснабжения и водоотведения;
- подводка и монтаж электросетей;
- подводка и монтаж сетей газоснабжения.
Во время данного этапа выполняются следующие работы:
- подводка и монтаж сетей водоснабжения и водоотведения;
- подводка и монтаж электросетей;
- подводка и монтаж сетей газоснабжения.
Во время данного этапа выполняются следующие работы:
- подводка и монтаж сетей водоснабжения и водоотведения;
- подводка и монтаж электросетей;
- подводка и монтаж сетей газоснабжения.
Фото и видео со стройки
Онлайн-трансляция
Достоинства

Сложившаяся инфраструктура района
Комплекс находится в развитой локации. В минимальной доступности пешком — 6 супермаркетов; общеобразовательные школы, включая 5 частных, рестораны и кафе, аптеки, поликлиники, отделения связи и услуг, банкоматы и многое другое.
«Альтаир-3» не только наследует лучшие решения в области проектирования пространств, инженерных систем и отделки общественных зон, но и задаёт новые стандарты жилого строительства в Одессе. Комфорт жильцов — основной принцип в основе философии комплекса.
Закрытая охраняемая территория
Единая зона безопасности под круглосуточным наблюдением
Детские и спортивные площадки
Развлекательные городки для детей и подростков
Зоны озеленения и семейного отдыха
Территория благоустройства предусматривает уголок для отдыха каждого члена семьи и выгула питомцев
Собственный многоуровневый паркинг
А также гостевая парковка для всех посетителей комплекса
Виды из окон
Офис продаж
 
                                                        Технологии
Наружные стены выполняются из трехслойных фасадных систем, обеспечивающих высокие показатели гидроизоляции и минимальные теплопотери. Материал фасада — технологичные стеклофибробетонные панели, заполненные утеплителем.
Для особого комфорта проживания выполняются современные шумозащитные мероприятия. Противопожарные мероприятия выполняются в строгом соответствии нормам пожарной безопасности для жилых домов. Каждая квартира оборудуется системой мониторинга «умный дом», управляемой с планшета из любой точки мира.
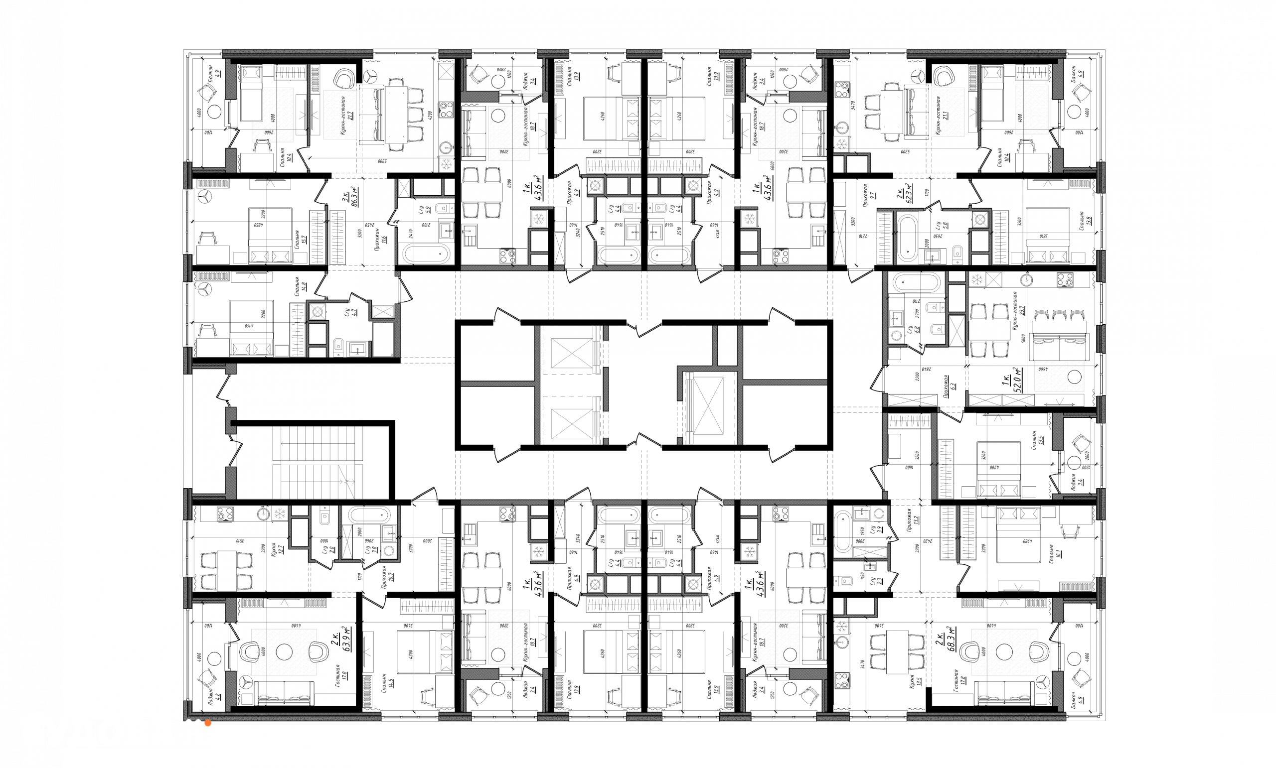
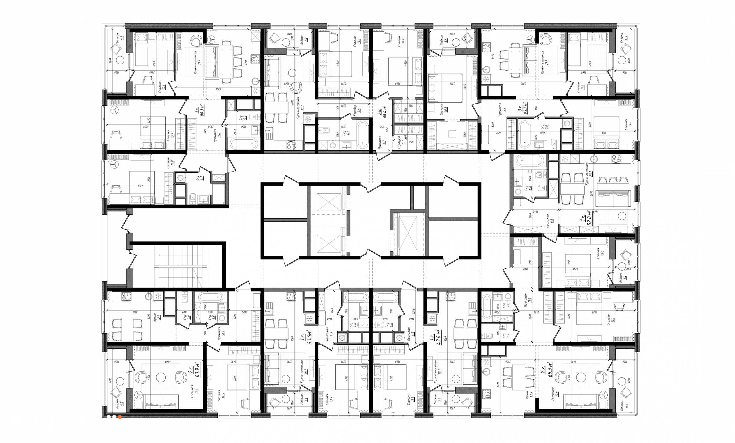
	 25 этажные жилые дома по ул. Жаботинского, 54-А расположены в современном спальном микрорайоне города в пределах улиц Жаботинского, Глинки, Проектная, поблизости от парка Горького, торговых и развлекательных центров. 
 
	 Во второй очереди строительства в составе жилых домов № 5,6,7 предусматриваются:
 
— коммерческие помещения;
— охраняемая территория с оборудованными площадками для отдыха и занятия спортом детей и взрослых;
— наземный многоуровневый паркинг.
 
	 Наружные стены выполняются из трехслойных фасадных систем. 
	 Фасадные системы изготавливаются из стеклофибробетонных панелей с заполнением утеплителем.
 
	 Внутренние несущие стены — из монолитного железобетона, толщиной 200 мм. 
 
	 Внутренние перегородки выполнены из газобетонной кладки. 
 
Лифты. Здание оборудуется скоростными бесшумными лифтами нового поколения, грузоподъемностью 630-1000 кг.
 
	 Окна, балконные двери. Профиль пятикамерный с двухконтурным запиранием. Для заполнения используется однокамерный энергосберегающий стеклопакет.
 
Отделка мест общего пользования выполняется по индивидуальному дизайнерскому проекту и включает:
 
— стены — окрашены;
— потолки — подвесные.
 
При проектировании были предусмотрены ряд шумозащитных мероприятий, обеспечивающих комфорт в проживании.
Отопление и вентиляция
Источником теплоснабжения является индивидуальная крышная газовая котельная ведущих европейских производителей. Теплоносителем для нужд отопления и теплоснабжения принята вода.
Система отопления — закрытая с насосной циркуляцией, двухтрубная, поквартирная, с установкой поэтажной распределительной гребенки в общем коридоре, из пластиковых труб. В качестве нагревательных приборов в квартирах устанавливаются стальные панельные радиаторы с установкой тепловых счетчиков и системы регулирования тепла в квартире. Вентиляция квартир предусмотрена принудительная через вытяжные каналы.
Водоснабжение и канализация
	 Внутренний водопровод монтируется из шитого полиэтилена. 
	 Поквартирный учет водоснабжения осуществляется счетчиками, которые устанавливаются в общем холле. Доступ к информации о потреблении тепла, ХВС, ГВС осуществляется через устройство (планшет) системы диспетчеризации «Интеллектуальная квартира».
	 Хозяйственно-бытовая канализация здания выполняется из полипропиленовых труб. 
	 Для обеспечения бесперебойного водоснабжения жилых домов запроектирована водопроводная насосная станция.
Автоматизация
Система «Интеллектуальная квартира» (базовая комплектация) с установкой высокотехнологичных коммуникаций в каждую квартиру, в том числе сетей телефонной связи, высокоскоростного интернета. Базовая комплектация обеспечивает автоматическое регулирование системой отопления квартиры, а также позволяет подключать иные интеллектуальные подсистемы: безопасности (защита от взлома, протечек и возгораний), автоматизированного учета расхода тепла, электроэнергии, холодной и горячей воды, а также хранения информации по потреблению энергоресурсов (посуточно, помесячно, за год).
Электроснабжение
Электрические сети выполняются медными проводами. Поквартирный учет электроэнергии осуществляется электронными счетчиками электроэнергии, которые устанавливаются в общем холле и подключены к системе «Интеллектуальный дом».
Электроснабжение от двух независимых вводов. Предполагается также резервное электропитание от дизель-генератора систем пожаротушения, котельной, насосной, аварийного освещения, пожарных лифтов.
Противопожарные мероприятия выполняются в соответствии с требованиями норм пожарной безопасности жилых домов.
Техническое состояние квартир при передаче их владельцам
 
	 — Отделка помещений не выполняется. 
	 — Полы — двухслойная стяжка с нижним слоем из политермбетона с наполнителем из пенополистирольных шариков, и верхним слоем — цементной стяжки. В санузлах стяжка и гидроизоляция не выполняется.
— Остекление — однокамерный стеклопакет с энергосберегающим покрытием.
— Отопление — выполняется в полном объеме с установкой радиаторов с установкой счетчиков тепла и системой регулирования температуры.
— Водоснабжение — ввод холодной и горячей воды с установкой счетчиков водоснабжения, расположенных в коридоре общего пользования.
— Канализация — введение в квартиру от стояков.
— Электроснабжение — ввод электропроводки в квартиру от электронных счетчиков учета электроэнергии, расположенных в коридоре общего пользования.
— Входные двери — бронированные, внутренние двери не устанавливаются.
Стандарты строительства
Документы
Будова
Одна из крупнейших строительных компаний на юге Украины, и признанный лидер жилого домостроения в Одессе. За 30 лет истории «Будова» завоевала доверие тысяч одесских семей и построила >60 объектов, из которых более половины — жилые комплексы. Подробнее о компании 
                    
                - Строим 30 жилых этажей в месяц
- >30 жилых комплексов
- >1 000 000 кв. м сданного жилья
- >30 000 семей выбрали наши квартиры своим домом






 
                 
                                                                 
                                         
                                                                 
                                         
                                                                 
                                                                 
                                         
                                                                 
                                                                 
                                                                 
                                                                 
                                                                 
                                                                 
                                                                 
                                                                 
                                         
                                                                 
                                                                 
                                                                









 
                 
                 
                 
                 
                 
                 
                 
                











 
                                     
                                     
                                     
                                     
                                    